Aula / Mehrzweckraum Schulanlage Thalheim an der ThurAnbau Bauherrschaft Gemeinde Thalheim, Peter Wettstein, Primarschule Thalheim Christian Schleuss
Einführung
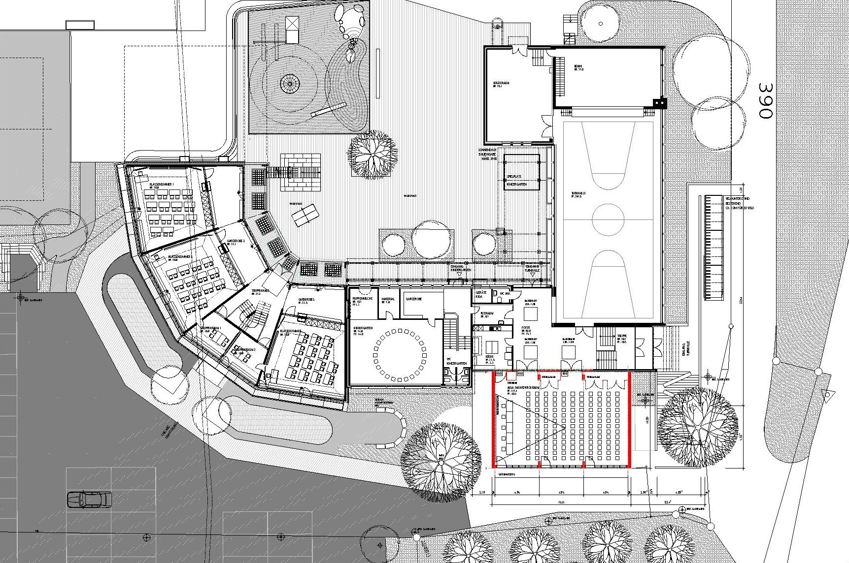
Die Thalheimer Primarschule rechnet für die kommenden Jahre mit mehr schulpflichtigen Kindern. Sie benötigt deshalb zwei zusätzliche Schulzimmer. Das kantonale Volksschulamt hat die beiden Klassenräume bereits bewilligt. Gleichzeitig mit den Zimmern soll auch ein Schulleiterbüro gebaut werden. Die neuen Schulzimmer werden in der heutigen Aula untergebracht, die deshalb umgebaut wird. Das dürfte nicht schwierig werden, denn der Saal war bereits auf eine mögliche Umnutzung hin konzipiert worden. Der Umbau ist nun früher notwendig geworden als vorgesehen. Die Bauarbeiten sollen während der Sommerferien 2008 ausgeführt werden. Schulpflege und Gemeinderat planen nun, die Aula durch einen Neubau zu ersetzen, der direkt an das Schulhaus angebaut werden soll. So kann die bestehende Infrastruktur der Schulanlage optimal mitgenutzt werden.
Die Gemeindeversammlung hat nun den Baukredit von 910'000 Franken gesprochen. Bereits vor der Kreditannahme wurde das Bauvorhaben bei den Behörden eingegeben, um Zeit zu gewinnen für die Ausführung, welche im Sommer vorgesehen ist, sollte es nicht zu wesentlichen Änderungen kommen.
Termine/Logeinträge
18. September 2007: Informationsabend für die Bevölkerung. Es wurden zwei mögliche Varianten vorgestellt: Variante Fortsetzung und Variante Tabakscheune
Das Projekt wird nun nochmals überarbeitet, damit eine optimale Lösung an der Gemeindeversammlung präsentiert werden kann.
30. April 2008: Das Baugesuch für den Anbau wurde eingegeben.
05. Juni 2008: Gemeindeversammlung über den Baukredit. mehr infos...
06. Juni 2008: Die Gemeindeversammlung hat den Baukredit von 910'000.00 bewilligt und sogar noch einen Zusatz von 12'000.00 für einen Unterhaltssteg für die Fassade bewilligt. Somit werden die Vorbereritungen für die Ausführung getroffen.
21. September 2008: Baubeginn
31. Oktober 2008: Besuchstag der Schüler
21. November 2008: Aufrichte. Nach einer Trocknungszeit wird im Elementbau innert wenigen Tagen das Gebäude aufgerichtet, bevor der zweite Schnee die Arbeiten erschweren würde.
24. Dezember 2008: Rechtzeitig vor der Winterpause konnten die Fenster eingebaut werden, um so optimale Bedingungen zur Austrocknung zu haben.
20. Januar 2009: Endlich konnte der Unterlagsboden eingebaut werden.
26. Januar 2009: Die Dämmung an der bestehenden Fassade und an der neuen Untersicht wird angebracht.
27. Januar 2007: Der Durchbruch zum Foyer ist gemacht worden, nun erfolgt der Zugang zur Baustelle auch nicht mehr über das Baugerüst.
16. Februar 2009: Das Gerüst kann demontiert werden und somit die Gartenarbeiten beginnen.
20. Februar 2009: Das kalte Wetter verhindert vorläufig das Verputzen und das Bearbeiten des Bodens.
04. April 2009: Eröffnungsfeier der neuen Aula mehr infos...letzte Änderung 04. April 2009
Lesen Sie mehr:
_Artikel Landbote vom 08. August 2007
_Artikel Landbote vom 20. September 2007
_Artikel Landbote vom 07. Juni 2008
_Artikel Landbote vom 03. April 2009


















